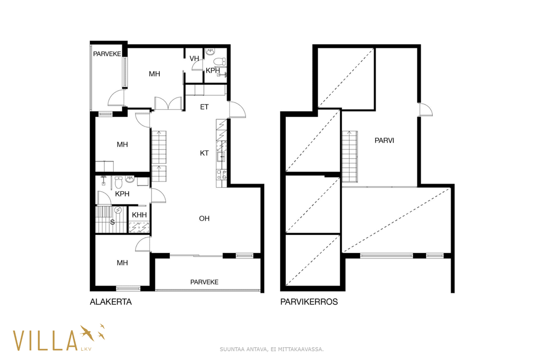
Kerrostalo 4h+kt+s+parvi

Kauppiaankatu 13, Solja, Pirkkala

Hinta
574 000 €

Koko
90 m²

Vuosi
2023

Valoa, korkeutta ja laatua - poikkeuksellinen premiumtason koti Pirkkalan Soljassa

Tämä ei ole perinteinen kerrostaloasunto. Kyseessä on arkkitehtonisesti näyttävä ja viimeistelyltään poikkeuksellisen huoliteltu kokonaisuus, jossa tila, huonekorkeus ja materiaalivalinnat luovat vaikutelman modernista loft-tyylisestä residenssistä.

Oleskelutilojen vaikuttava huonekorkeus ja suuret ikkunapinnat tuovat kotiin runsaasti luonnonvaloa ja korostavat tilan avaruutta. Avokeittiö ja olohuone muodostavat elegantin ja toiminnallisesti harkitun kokonaisuuden. Parvi tuo asuntoon lisäulottuvuuden, joka toimii luontevasti makuu- ja työtilana tai rauhallisena oleskelutilana. Kesäkaudella asumismukavuutta täydentävät kaksi parveketta, joista toinen avautuu olohuoneen ja toinen makuuhuoneen yhteydestä.

Huoneistoon on teetetty merkittävä määrä tasonparannuksia jo rakennusvaiheessa sekä valmistumisen jälkeen. Materiaalit, kiintokalusteet ja kodinkoneet on päivitetty selvästi perusvarustelun yläpuolelle, ja viimeistelyn taso on kauttaaltaan poikkeuksellisen huoliteltu. Kokonaisuus täyttää vaativankin ostajan odotukset ja se on erinomaisen kuntonsa ansiosta varteenotettava vaihtoehto myös uudiskohdetta etsivälle.

Sijainti täydentää kokonaisuuden. Solja on rauhallinen ja kylämäinen asuinalue, jossa moderni rakennuskanta ja väljä korttelirakenne luovat harmonisen ympäristön. Tampereen keskustaan ajat noin 15 minuutissa Rajasalmen sillan kautta, ja ohitustielle sekä Helsingin moottoritielle liityt vaivattomasti. Pirkkalan erinomaiset ulkoilumaastot avautuvat läheltä, ja Suupan kattavat palvelut - apteekki, kirjasto, terveysasema, ravintolat ja Alko - sijaitsevat noin viiden minuutin etäisyydellä.

Lisäetuna asunnon yhteydessä on mahdollisuus ostaa kaksi autohallipaikkaa.

TUTUSTU JA IHASTU:
Sovi kanssamme sinulle parhaiten sopiva esittelyaika - esittelemme kohteen joustavasti. Ota rohkeasti yhteyttä ja varaa oma esittelyaikasi!

VILLA LKV - asuntounelmia | unelma-asuntoja

Kohdenumero 20880204
Sijainti Kauppiaankatu 13, 33960 Pirkkala
Omistusmuoto Oma
Huoneistoselitelmä 4h+kt+s+parvi
Huoneita 5 h
Hallintamuoto Asunto-osakeyhtiö
Tyyppi Kerrostalo (osake)
Asuintilojen pinta-ala 90 m²
Kerros 4/4
Vapautuminen sopimuksen mukaan
Kunto Lähes uudenveroinen kunto, huoliteltu viimeistely ja merkittävät tasonparannukset tekevät tästä kodista erinomaisen vaihtoehdon myös uudiskohdetta etsivälle, ilman perusvarustelun kompromisseja.
Kohteen kunto Hyvä
Energialuokka B2018.
Rakennusvuosi 2023
Käyttöönottovuosi 2023

Velaton hinta 574 000 €
Myyntihinta 574 000 €
Velkaosuus -
Vuokrattu Ei
Vastikkeet
Huoneiston yhtiövastike yht 405 € / kk
Hoitovastike 405 € / kk

Muut maksut - Tietoliikennevastike 7,00 €/kpl - Vesimaksuennakko 30,0 €/hlö/kk (tasauslaskutus todellisen kulutuksen mukaan)

Lämmitys Vesikiertoinen lattialämmitys
Lämmitysmuodot
  • kaukolämpö
  • muu
Oma sauna Kyllä
Hissi Taloyhtiössä on hissi
Parveke Kyllä
Antennijärjestelmä Kaapeli-tv
Tehdyt remontit Huoneistoon on tehty merkittävä määrä tasonparannuksia jo rakennusvaiheessa myyjän tilauksesta rakennusliikkeeltä sekä valmistumisen jälkeen myyjän toimesta eri toimittajilta. >> Rakennusvaiheessa toteutetut muutostyöt ja tasonparannukset >> Keittiö ja kiintokalusteet: - Keittiöroiloukset, viemärien ja rasioiden siirrot - Topi-keittiön kiintokalustemuutokset 3.1.2023 suunnitelmien mukaan - Välitila mustaa graniittia - Mustat kulmapistorasiat - Keittiöallas SUBLINE 500-U, Silgranit, alta kiinnitettävä musta - Jääkaappi ja pakastin vaihdettu jääkaappipakastimeksi (AEG SCE818E6TF) - Astianpesukone vaihdettu (AEG FSK93847P) Eteinen ja lasiratkaisut: - Eteiskalustemuutokseen 17.8.2022 liittyvät rakennustekniset muutostyöt, sisältäen parketin - Hietakari Blak 780 Tokio -erikoiskoko (k=2250 mm) Talotekniikka ja sähkötyöt: - IV-koneen ohjauksen muutos - Paine-erokytkin Savo Pek-1 asennettuna - Pistorasalisäykset ja muut sähkömuutokset 16.8.2022 - Sähköistykset pyyhekuivaimille Pesutilat: - Pyyhekuivain KHH: Largo EH 80404 - Pyyhekuivain KPH: Vivo EH 20122 (Rakennusaikana aiemmin tilattu tehostelaatta peruttu 16.8.2022.) >> Valmistumisen jälkeen tehdyt muutostyöt ja lisäykset >> Keittiö ja kodinkoneet: Kodinkoneiden päivitys: - Pora Bure -liesi/tuuletinyhdistelmä - Bosch yhdistelmäuuni - 20 cm viinikaappi tason alla - Jääkaappi/pakastin oikealle puolelle - Portaikon alle teetetty keittiötaso (lev. 1600 mm) laatikostoilla, materiaalit yhtenevät muun keittiön kanssa Pesuhuoneet: - KPH: yläkaappi IV-laitteen viereen ja yhtenäinen pohjalevy alle - Pienemmän pesuhuoneen kaappien ovet ja laatikoston etusarjat vaihdettu - Lisätty yläkaappi tasoaltaan päälle Säilytysratkaisut: - MH3:een teetetyt tammiviilukaapistot peräseinälle - (MH2:sta poistettu kaapit rakennusvaiheessa) - Vaatehuone kalustettu Elfa-järjestelmällä Sisustus ja varustelu: - Olohuoneeseen tammirimaseinä - Olohuoneen korkeisiin ikkunoihin pysty-lamelliverhot - Sälekaihtimet molempien parvekkeiden alalaseihin - MH2:een musta pimennysrullaverho ja musta sälekaihdin
Auton säilytys Piha-autopaikkoja: 6, lisätietoa: Myydään osakkeina. Pihapaikat sähköautojen lataus-/lämmitysvalmiudella. Autohallipaikat Koy Soljan Parkissa samalla tontilla.

Rakennusmateriaalit
Käytetyt rakennusmateriaalit
  • elementti
  • muu
  • betoni
Muut rakennusmateriaalit Julkisivut pääosin paikalla muurattu tiiliverhous tai rappaus. Väliseinät pääosin kivirakenteisia
Keittiö
Keittiön pöydät
  • kivi
Keittiön muu varustelu
  • liesituuletin
Liesi
  • integroitu
Jääkaappi ja pakastin
  • jääkaappi/pakastin
Keittiön lattia
  • parketti
Kylpyhuone
Kylpyhuoneen varustelu
  • pesukoneliitäntä
  • wc-istuin
  • suihku
  • peili
Kylpyhuoneen lattia
  • laatta
Kylpyhuoneen seinät
  • kaakeli
Sauna
Kiuas
  • sähkökiuas
Saunan lattia
  • laatta
Saunan seinät
  • puu
Makuuhuone
3
Makuuhuoneen lattia
  • parketti
Makuuhuoneen seinät
  • maalattu
Parveke
Parveke
  • lasitettu
Olohuone
Olohuoneen lattia
  • parketti
Olohuoneen seinät
  • maalattu
  • puu
WC-tilat
WC-tilojen varustelu
  • suihku
  • suihkuseinä
WC-tilojen lattia
  • laatta
WC-tilojen seinät
  • kaakeli

Koko 3 726 m²
Omistus Vuokrattu
Maanvuokraaja Pirkkalan kunta
Kaavoitustilanne
  • Asemakaava
Vuokra 45 355 € / vuosi
Vuokra-aika päättyy 29.04.2071

Nimi As Oy Soljan Sinfonia
Isännöitsijän tiedot Kiinteistö-Tahkola Tampere Oy
Huolto Tampereen Talopalvelut Oy
Tehdyt remontit 2024 Rakennuttajan suorittamat vuosikorjaus-/takuutyöt
Tulevat remontit 2024-2028 Normaalit huolto- ja kunnossapitotyöt
Huoneistojen lukumäärä 41
Liikehuoneistojen lukumäärä 3
Taloyhtiössä
  • urheiluvälinevarasto
Taloyhtiössä muuta Tekniset tilat, kerhotila, siivouskomero, irtaimistovarasto/väestönsuojatilat

Nimi Salminen Kari
Sähköposti kari.salminen@villalkv.fi
Puhelin 0505705655
Yrityksen nimi VILLA OY LKV
Toimiston nimi VILLA OY LKV

Yrityksen nimi VILLA OY LKV
Toimiston nimi VILLA OY LKV
Osoite Näsilinnankatu 21, Tampere
Toimiston puhelin 0505705655
Toimiston sähköposti asiakaspalvelu@villalkv.fi
Takaisin kohdelistaan